Gronenberger Muehle Haus 25
Preview only — see all hotel photos
See all 22 photos
Mostra hotel sulla mappa
Gronenberger Muehle Haus 25
Alloggiando presso la Villa Gronenberger Muehle Haus 25 Scharbeutz, gli ospiti possono raggiungere facilmente Seebrücke Scharbeutz, che si trova a circa 3 km.
Il cuore di Scharbeutz è raggiungibile in 30 minuti a piedi da questa villa con 1 camera da letto, mentre luoghi di interesse culturale come il Museum für Regionalgeschichte è a 5 minuti in auto. La casa vacanze è a 3,1 km da luoghi di culto come la Chiesa della Spiaggia. La Villa Gronenberger Muehle Haus 25 offre un facile accesso a meraviglie naturali come il Lago Taschen (3,2 km) e il Grande Lago di Ponitz (1 km).
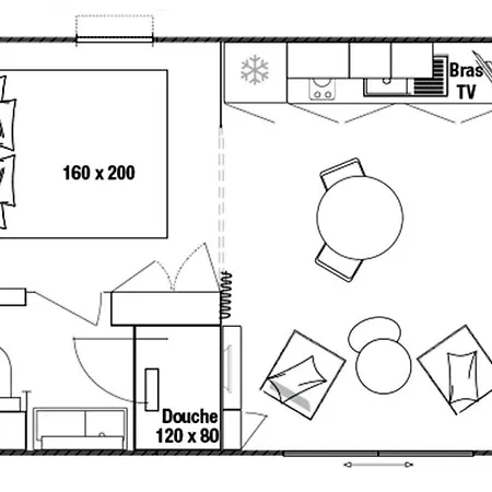
I servizi igienici della struttura comprendono anche una doccia. Inoltre, per il comfort degli ospiti, sono presenti asciugacapelli.
La Villa Gronenberger Muehle Haus 25 è dotata di una cucina con un bollitore elettrico, un frigo e utensili da cucina. La fermata dell'autobus Gronenberger Hof si trova a circa 10 minuti a piedi e ti permetterà di scoprire Scharbeutz.
Servizi
Top Servizi
- Wi-Fi
- Attività sportive
- Animali non ammessi
Servizi
- Struttura non fumatori
- Wi-Fi
- Animali non ammessi
- Bollitore elettrico
- Pentolame/Utensili da cucina
- Zona pranzo all'aperto
- Equitazione
- Riscaldamento
- Area soggiorno
- Terrazza
- Mobili da giardino
- Tavolo da pranzo
Politica
Mappa
Attrazioni locali
Attrazioni turistiche
- Bay of Lübeck (3,9 km)
- Sierksdorf - Hof (4,2 km)
Aeroporti
- Aeroporto di Lubecca (33 km)
Stazioni ferroviarie
- Lübeck-Travemünde Hafen (14 km)
Recensioni
100% Recensioni Verificate